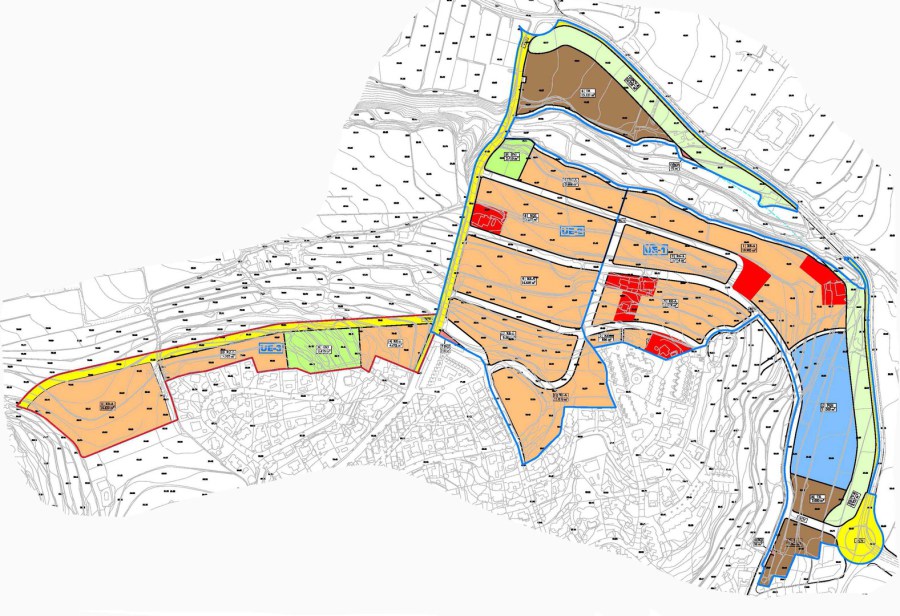
Plan:          PLAN PARCIAL DE USO RESIDENCIAL UZ0-10

Situación:  TEULADA (Alicante)

Año inicio: 2017

Superficie:  136.321 m2

Cliente:      Urbanizadora Sol Dorado S.L.

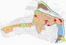
Plan:          PLAN PARCIAL DE USO RESIDENCIAL UZ0-9

Situación:  TEULADA (Alicante)

Año inicio: 2017

Superficie:  228.336 m2

Cliente:      Nuevas Alternativas urbanísticas S.L.

Plan:          PLAN PARCIAL DE USO TERCIARIO E INDUSTRIAL "MOLINETS"

Situación:  PEDREGUER (Alicante)

Año inicio: 2002

Superficie:  181.073 m2

Cliente:      Reflex 21 S.L.

Plan:          PLAN PARCIAL DE USO TERCIARIO E INDUSTRIAL "MARJALS"

Situación:  ONDARA (Alicante)

Año inicio: 2001

Superficie:  360.285 m2

Cliente:      Ayuntamiento de Ondara

 

En colaboración con la Arquitecta Rosario Peris Sánchez

Plan:          PLAN PARCIAL DE USO RESIDENCIAL "BENICADIMS"

Situación:  BENIARBEIG (Alicante)

Año inicio: 2005

Superficie:  45.553 m2

Cliente:      Ayuntamiento de Beniarbeig

Plan:          PLAN PARCIAL DE USO RESIDENCIAL "BORISSA"

Situación:  PEDREGUER (Alicante)

Año inicio: 2005

Superficie:  59.059 m2

Cliente:      Ayuntamiento de Pedreguer