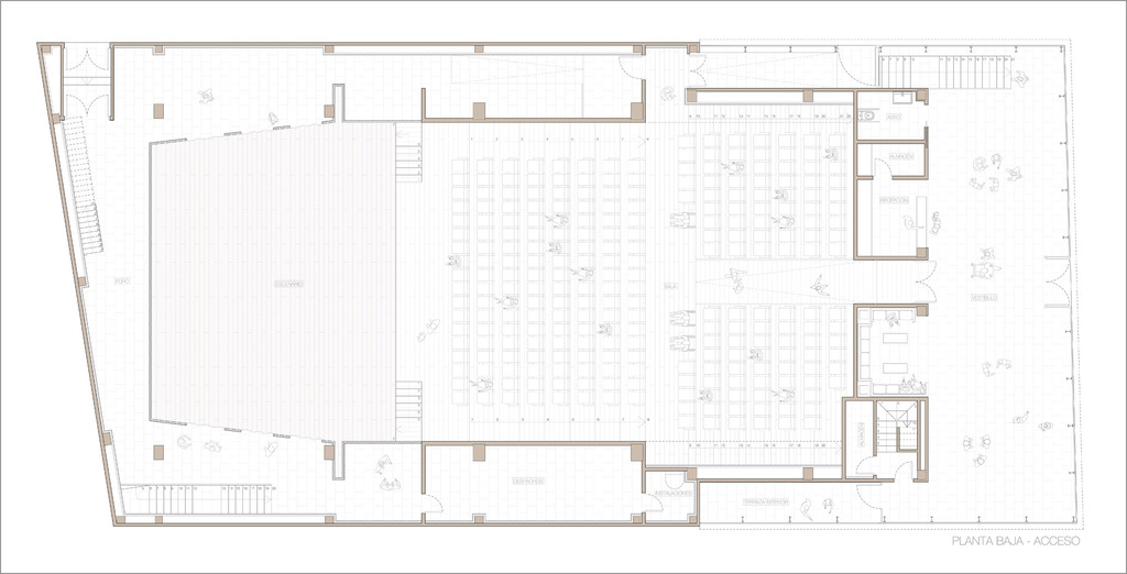
Uso:                                         Teatro-Auditorio

Proyecto:                                  2018

Finalización de las obras:         En ejecución

Cliente:                                    Ayuntamiento de Beniarbeig

Situación:                                 Beniarbeig (Alicante)

Características:                        Teatro -Auditorio de 300 plazas de capacidad y escenario para orquesta de 100 músicos.                                                        enclavado en la "Manzana Cultural" de Beniarbeig.